|
podział na formatki z wewnętrznymi(?)marginesami |
| Autor |
Wiadomość |
magicMZM
Początkujący

Dołączyła: 26 Lut 2010 Posty: 11 Skąd: LBL
|
Wysłany: 13 Lipiec 2011, 15:07 podział na formatki z wewnętrznymi(?)marginesami
|
|
|
Chodzi mi o coś mniej więcej takiego:
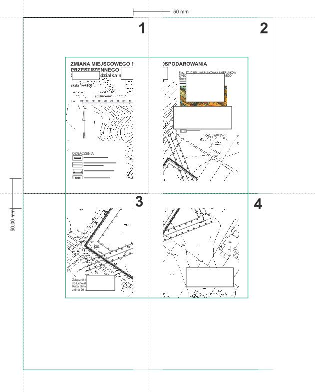
mam rys /mapę/ formatu A3 , chcę ją rozciąć na 4 formatki A4 tak , żeby były zachowane białe marginesy-takie rozsunięte żeby to było. Jak to zrobić w miarę szybko może jest jakiś prosty sposób. Bo ja robię to na okrętkę, tzn. rysuję 4 kartki A4 na nich marginesy 25 mm od każdego brzegu na to wstawiam mapę (na środku). Zapisuję 1 cześć do pdf, potem odsuwam te 50 mm w dół,znowu do pdf, 50 w górę i 50 w lewo- znowu do pdf..., i znów 50 w doł i pdf. No i schodzi na to trochę czasu. Nie mówiąc już co jest jak chce większy format tak dzielić.Da się to jakoś z automatu ustawić? i jak to do jpg eksportować, żeby zapisywała się pojedyncza kartka ( wywalać za każdym razem pozostałość?)
Chaotycznie to tłumaczę, ale może ktoś zrozumie:p
Pomocy
1.JPG białe marginesy zasłaniają mi mapę , dlatego drukując następny kawałek przesuwam o 50 w odp kierunku |
Pobierz Plik ściągnięto 307 raz(y) 55.17 KB |
Rysunek2.jpg efekt końcowy- jest kontynuacja z częścią 3 |
Pobierz Plik ściągnięto 293 raz(y) 374.82 KB |
Rysunek3.jpg
|
Pobierz Plik ściągnięto 285 raz(y) 387.63 KB |
|
|
|
|
 |
s-p-i-n

Pomógł: 192 razy Dołączył: 26 Lut 2007 Posty: 1484 Skąd: opolszczyzna
|
|
|
|
 |
kula69

Wersja CorelDRAW: x5
Pomógł: 71 razy Wiek: 56 Dołączył: 04 Lut 2011 Posty: 890 Skąd: Koszalin
|
Wysłany: 13 Lipiec 2011, 17:49
|
|
|
| magicMZM, rozumiem że masz drukarkę a4 a chcesz wydrukować a3? LUB inaczej -na kiego czorta Ci to?? Pytam bo może jest inna metoda |
|
|
|
 |
magicMZM
Początkujący

Dołączyła: 26 Lut 2010 Posty: 11 Skąd: LBL
|
Wysłany: 13 Lipiec 2011, 19:04
|
|
|
| Chyba źle wytłumaczyłam:-/. Mam A3 drukarkę:-). Chodzi o to że te mapy są duże (A3 i lepiej)a mają być podzielone na a4 (potem to wszystko do wpięcia w książeczkę)żeby z każdego brzegu był zachowany margines i to spory |
|
|
|
 |
kula69

Wersja CorelDRAW: x5
Pomógł: 71 razy Wiek: 56 Dołączył: 04 Lut 2011 Posty: 890 Skąd: Koszalin
|
Wysłany: 13 Lipiec 2011, 20:59
|
|
|
| nic mi nie przychodzi do głowy |
|
|
|
 |
chezare


Pomógł: 402 razy Dołączył: 24 Gru 2010 Posty: 4551 Skąd: Grodzisk Mazowiecki
|
Wysłany: 13 Lipiec 2011, 23:55
|
|
|
| Ja bym zrobił tak |
|
|
|
 |
kula69

Wersja CorelDRAW: x5
Pomógł: 71 razy Wiek: 56 Dołączył: 04 Lut 2011 Posty: 890 Skąd: Koszalin
|
Wysłany: 14 Lipiec 2011, 06:11
|
|
|
| chezare, ale ona (z tego co zrozumiałem) tak praktycznie robi |
|
|
|
 |
chezare


Pomógł: 402 razy Dołączył: 24 Gru 2010 Posty: 4551 Skąd: Grodzisk Mazowiecki
|
Wysłany: 14 Lipiec 2011, 06:55
|
|
|
Cześć Kula.
Chyba jednak nie? Wygląda tak jak by przesuwała mapę tak żeby na stronie było widać tylko właściwy kawałek, a potem eksportuje to do pdfa, pewnie po to żeby obciąć co niepotrzebne? Otwiera z powrotem w Corelu, bo napisała o eksporcie do jpg.
Generalnie, ja tak zrozumiałem, chodzi o to żeby pociąć obrazek na kawałki a jeśli tak to zaproponowany przeze mnie sposób jest chyba najprostszy i najszybszy?
Warunek jest jeden, musi to być przynajmniej X3.
Pozdrawiam
Czarek |
|
|
|
 |
magicMZM
Początkujący

Dołączyła: 26 Lut 2010 Posty: 11 Skąd: LBL
|
Wysłany: 14 Lipiec 2011, 06:56
|
|
|
| Dziękuję wszystkim! Chezare jesteś wielki dzięki- Twoja metoda jest szybsza |
|
|
|
 |
chezare


Pomógł: 402 razy Dołączył: 24 Gru 2010 Posty: 4551 Skąd: Grodzisk Mazowiecki
|
Wysłany: 14 Lipiec 2011, 07:07
|
|
|
Cieszę się, że mogłem pomóc. Przepraszam za to objaśnienie, ktoś kto rysuje takie mapy musi sprawnie posługiwać się programem
Tak na marginesie, od X3 można przy użyciu wektorowych obiektów robić z bitmapami co się człowiekowi podoba. Ciąć, kadrować, itp. |
|
|
|
 |
kula69

Wersja CorelDRAW: x5
Pomógł: 71 razy Wiek: 56 Dołączył: 04 Lut 2011 Posty: 890 Skąd: Koszalin
|
Wysłany: 14 Lipiec 2011, 07:41
|
|
|
oj głupia kula nic nie zrozumiała, może to wpływ słoneczka (2 dni oklejania białych samochodów na dworze) |
|
|
|
 |
kula69

Wersja CorelDRAW: x5
Pomógł: 71 razy Wiek: 56 Dołączył: 04 Lut 2011 Posty: 890 Skąd: Koszalin
|
Wysłany: 14 Lipiec 2011, 20:50
|
|
|
| chezare, ja dzisiaj kończyłem te fordy wszystkie bielutkie żeby oczka wypłynęły hihi a wyklejamy przy drukarni bo... drukarki muszą pracować niezły bajzel |
|
|
|
 |
|
|